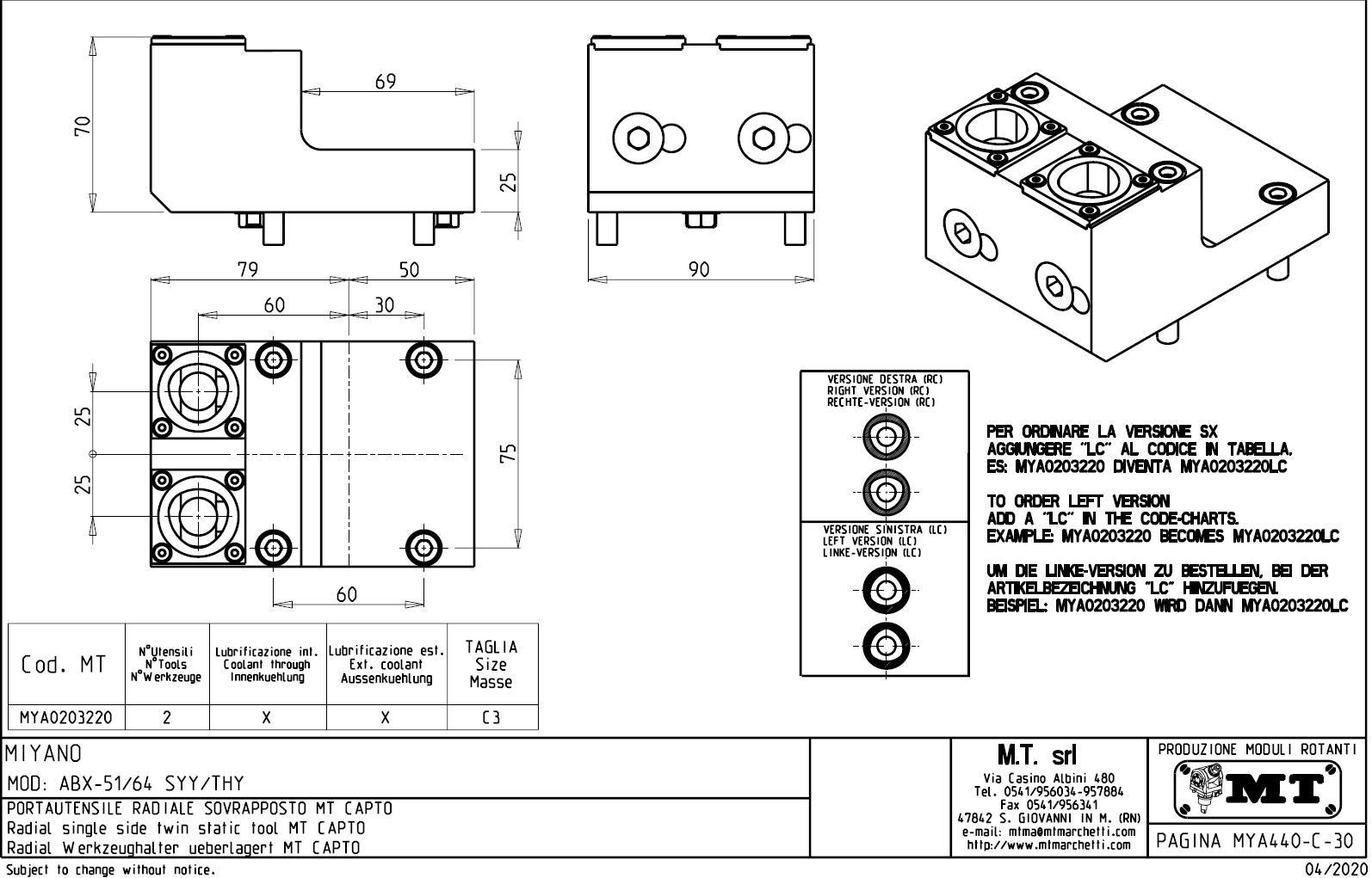
Radiální pevný držák nástrojů pro vnější soustružení:
- vnitřní (max.70bar) a venkovní přívod řezné kapaliny.
- pro upnutí vnějších nožů.
Určeno pro stroje:
- Miyano - série ABX - 51 / 64 SYY / THY

Pro stažení souboru se prosím přihlašte. Pokud nemáte účet tak se nejprve registrujte.